Iconic bridge torn down at St. Hubert’s
Demolition of an iconic bridge that has been part of the landscape in the Pipestone Valley for 90 years is currently underway, making room...
Doctor shortage interrupts services
The availability of doctors to cover emergency services at Moosomin’s Southeast Integrated Care Centre continues to be a problem.
In January, representatives from the Regina...
Figure skater heading to Canada Winter Games
A personal milestone was achieved by a Whitewood figure skater earlier this week when it was announced that she will represent Saskatchewan at the...
Delegates say emergency plans needed
As delegates at the Saskatchewan Urban Municipalities Association’s (SUMA) annual convention discuss emergency preparedness and the eastern part of Canada declares a state of...
Local bread and laundry services being contracted out
The clean bedding that you or your family members lie in while in hospital and some of the laundry in the nursing homes will...
Whitewood break and enters
RCMP in Broadview continue to investigate two break and enters in Whitewood, one at the Silverwood RM Office and the other at the Whitewood...
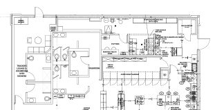
Floor plans released for new Co-op store
Borderland Co-op has released the drawings of the new fuel station and convenience store being built in Whitewood, as well as provided a timeline...
Town spending $25,000 on water leak finder
A $25,000 capital expenditure was approved at the last regular meeting of Whitewood town council to purchase a leak finder for water breaks.
A water...
Living with diabetes: a local woman’s story
The number of people living with diabetes in Saskatchewan is expected to grow to more than 93,000 in 2015. Nearly 8.5 per cent of...
Moskaluke nominated for Junos
The 2015 Juno nominees were announced Jan. 27 and an up-and-coming local country singer has found herself a first-time nominee with two nominations.
Jess Moskaluke...
















